Challenge
This module challenged me to demonstrate professional standards in interior design practice by producing a complete technical and documentation package. The brief required me to address accessibility, building regulations, costing and construction detail while maintaining a consistent
design identity.
Goal
My goal was to translate conceptual design ideas into fully resolved technical drawings that meet industry requirements. This included general arrangement plans, regulation assessments, material schedules and bespoke joinery drawings all developed to a professional standard.
Outcome
The final document presented a demographic analysis and fire safety layouts to floor finishes and lighting plans. These outputs demonstrated my ability to merge creativity with technical accuracy, producing interiors that are visually refined, inclusive and ready for real-world implementation.

Understanding diverse user needs was key to shaping an inclusive space. This analysis explored how the design could support users of different ages, abilities and lifestyles from teenagers and adults to individuals facing homelessness.

The General Arrangement Plan illustrates the spatial layout and flow of the wellbeing centre, ensuring functionality, comfort and accessibility across all areas, from reception to counselling rooms.

This drawing demonstrates compliance with Part B regulations, highlighting fire exits, extinguishers and alarm points to ensure user safety and clear evacuation routes.

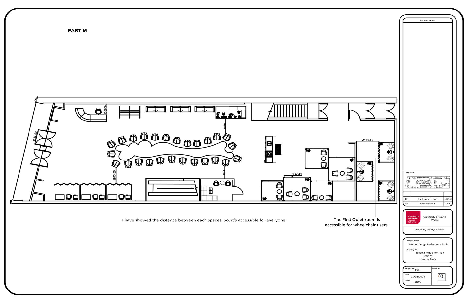
Part M drawings evaluate accessibility throughout the space. Distances between furniture and pathways were planned to accommodate wheelchair users and support universal design standards. Part K was not applied.

A detailed specification and cost analysis outlining all materials, finishes, lighting and furniture selections, ensuring the project remains both functional and financially feasible.

This plan visualises the distribution of flooring materials across different zones, combining durability with aesthetic warmth to create a cohesive, inviting interior.

The wall finishes layout combines texture and tone to create a calm, cohesive environment. Natural materials and muted colours define each zone, supporting relaxation and focus throughout the space.

The lighting plan integrates decorative and functional elements to enhance ambience and visibility. A suspended plant ceiling feature adds texture and biophilic appeal to the social area.

A technical drawing of the kitchen area, showing elevations and sections with precise dimensions, material details and realistic 3D visualisation for construction accuracy.

A detailed technical drawing of the modular counselling pod, showcasing oak cladding, acoustic panels and frosted glass. Designed for privacy, flexibility and easy assembly on site.

Back to Top